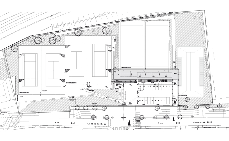
CLUB HOUSE ET TENNIS, ST GRATIEN (95)
PROGRAMME :
Réalisation d’un club house et de deux tennis terre battue tout temps.
Le nouveau bâtiment s’appuie et s’ouvre sur les tennis couverts en toile. Il crée une liaison entre les terrains de tennis couverts existants et les nouveaux terrains extérieurs.
Réaménagement paysager du complexe sportif avec création d’un parking.
Le complexe sportif des Cressonnières se développe d’est en ouest le long de la rue des Cressonnières; il est constitué d’un stade de football, d’un club tennis et d’un dojo. La création du Club House et le réaménagement des espaces extérieurs permet d’établir une liaison fonctionnelle et une cohérence entre tous les éléments de cet équipement. Sorte de trait d’union, le club house s’étire d’est en Ouest en liaisonnant les courts de tennis extérieurs aux courts couverts. Il s’adosse aux deux courts en toile, aménageant une fenêtre en longueur sur leur tympan qui offrira une vision panoramique sur les terrains. En prolongement de l’espace club, un deck en bois offre en période estivale un espace supplémentaire ouvert sur les courts extérieurs. Deux courts extérieurs en terre battue tout temps son créés en prolongement et viennent compléter les cours extérieurs en dur, ils viendront par leur proximité au dojo, rattacher cet équipement au pôle tennis. Le terrain, de forme rectangulaire, se situe sur la commune de Forges les Eaux. Le terrain est occupé en son centre par le Château de la Minière, construit au19 siècle en pierre et briques, complété par une tour isolée au Nord. Plusieurs bâtiments hétérogènes, de faible qualité architecturale, ont été ensuite construits sur le site. Le parc, face au château, est composé d’une grande pelouse de bosquets et d’arbres de hautes tiges dont quelques spécimens d’essences rares. Il est limité à l’ouest par un mur de pierres doublé d’un alignement d’arbres. Deux parkings sont aménagés, pour les enseignants, l’administration et les visiteurs. Le projet prévoit la démolition des bâtiments préfabriqués des années 80 et la création d’un bâtiment annexe au château à vocation pédagogique et administrative. De plain pied, celui -ci permettra de reloger les 3 classes, les bureaux de l’administration, la salle des formateurs et d’accueillir un foyer CDI pour les élèves.
FICHE TECHNIQUE :
Architectes : Th Bresdin associé à Ligne 7 mandataire - Mission de base + OPC et synthèse Maitre d’ouvrage : Ville de Saint Gratien
SHON 250 m2,
Cout des travaux : 1 M€ HT
Livraison Avril 2012





